ενημέρωση 7:10, 9 October, 2025

Ζώντας ανάμεσα σε δύο επίπεδα - το μινιμαλιστικό σπίτι του Fran Silvestre μοιάζει να αιωρείται στην Ανδαλουσία

ένα σπίτι στην αποκλειστική κοινότητα Sotogrande

Το Fran Silvestre Arquitectos συνεχίζει τη μελέτη του στην μινιμαλιστική αρχιτεκτονική με αυτό το νεόδμητο σπίτι στο Sotogrande της Ισπανίας . Μεγάλο μέρος του έργου της εταιρείας χαρακτηρίζεται από την έμφαση στην απλότητα, τις καθαρές γραμμές και τη χρήση μιας περιορισμένης παλέτας υλικών, και αυτό το σπίτι περιορίζεται ομοίως στα βασικά του στοιχεία. Βρίσκεται μπροστά σε ένα παράκτιο γήπεδο γκολφ, το σπίτι έχει σχεδιαστεί με έμφαση στην αλληλεπίδραση φωτός και σκιάς. Διαθέτει μια προβολική οροφή που εκτείνεται πέρα ​​από την κύρια κατασκευή, παρέχοντας σκιά από τον έντονο ήλιο του Κάντιθ, προσφέροντας παράλληλα προστασία από τις έντονες βροχοπτώσεις που κατεβαίνουν από τη Sierra de Grazalema, την περιοχή με τις υψηλότερες βροχοπτώσεις στην Ιβηρική Χερσόνησο. Η ευρεία σύνδεση του σπιτιού με το τοπίο υπογραμμίζει την πρόθεσή του να ενσωματωθεί στο φυσικό πλαίσιο αντί να το κυριαρχήσει.

fran silvestre σπίτι sotograndeεικόνες © Fernando Guerra

Χωρικός Ορισμός και Ουσιαστικότητα

Οι αρχιτέκτονες με επικεφαλής τον Fran Silvestre ολοκληρώνουν αυτό το σπίτι στο Sotogrande, μια εκτεταμένη παραθαλάσσια οικιστική κοινότητα στην Ανδαλουσία, γνωστή για τις πολυτελείς βίλες, τα γήπεδα γκολφ και την αποκλειστική μαρίνα. Ο σχεδιασμός ενσωματώνει έναν ξύλινο όγκο στον πυρήνα του κτιρίου, εξασφαλίζοντας ιδιωτικότητα στους εσωτερικούς χώρους, ενώ παράλληλα εισάγει ζεστασιά σε όλους τους χώρους. Το σπίτι ορίζεται από τέσσερα βασικά στοιχεία - το επίπεδο του εδάφους, την προεξέχουσα οροφή που δημιουργεί σκιά, την γυάλινη πρόσοψη που εξασφαλίζει αποτελεσματικό έλεγχο του κλίματος και το ξύλινο εσωτερικό που ενισχύει τη συνολική άνεση. Αυτά τα στοιχεία συνεργάζονται για να δημιουργήσουν μια ισορροπημένη σύνθεση όπου συνυπάρχουν η ανοιχτότητα και η οικειότητα.

Η είσοδος στο σπίτι γίνεται από τον επάνω δρόμο, προσφέροντας μια υπερυψωμένη θέα του ανακλαστικού υδάτινου στοιχείου και του γύρω τοπίου. Αυτό το υδάτινο στοιχείο δεν είναι μόνο αισθητικό, αλλά χρησιμεύει και ως θερμομόνωση και ακουστική μόνωση, ρυθμίζοντας την εσωτερική θερμοκρασία απορροφώντας θερμότητα κατά τη διάρκεια της ημέρας και απελευθερώνοντάς την τη νύχτα, μειώνοντας την ανάγκη για τεχνητή θέρμανση και ψύξη. Αυτή η βιώσιμη προσέγγιση ευθυγραμμίζεται με τις σύγχρονες αρχιτεκτονικές τάσεις που δίνουν έμφαση στην ενεργειακή απόδοση και την περιβαλλοντική ενσωμάτωση.

fran silvestre σπίτι sotograndeΗ Fran Silvestre Arquitectos ασπάζεται τον μινιμαλισμό με έμφαση στην απλότητα και τη λειτουργικότητα.

Περιβαλλοντικές Σκέψεις του Fran Silvestre

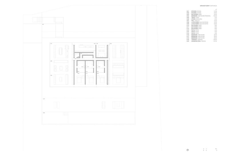
Η κατοικία ακολουθεί μια συμπαγή χωροταξική διάταξη, με έναν κεντρικό πυρήνα που φιλοξενεί κάθετη κυκλοφορία και φεγγίτες, φέρνοντας φυσικό φως στο εσωτερικό. Τα επίπεδα της οροφής και του εδάφους μετατοπίζονται διακριτικά για να δημιουργήσουν μια σκεπαστή είσοδο και μια πισίνα υπερχείλισης που εκτείνεται οπτικά στο γήπεδο γκολφ. Υιοθετώντας έναν μινιμαλιστικό σχεδιασμό με έμφαση στην αποδοτικότητα των υλικών και την περιβαλλοντική ευαισθησία, το House in Sotogrande επιτυγχάνει μια εκλεπτυσμένη και γαλήνια εμπειρία διαβίωσης. Το έργο δίνει προτεραιότητα στην ελάχιστη περιβαλλοντική επίπτωση, καθώς η ομάδα ελπίζει να βελτιώσει την εμπειρία κατοίκησης σε έναν σκιερό, γαλήνιο χώρο στο Sotogrande.

fran silvestre σπίτι sotograndeΤο Σπίτι στο Σοτογκράντε ανοίγεται ευρέως στο φυσικό του περιβάλλον

fran silvestre σπίτι sotograndeμια στέγη με πρόβολο παρέχει σκιά και προστασία τόσο από τον ήλιο όσο και από τις έντονες βροχοπτώσεις

fran silvestre σπίτι sotograndeΤο Sotogrande είναι μια αποκλειστική παράκτια κοινότητα γνωστή για την πολυτέλεια και την ιδιωτικότητα.

fran-silvestre-arquitectos-house-sotogrande-spain-designboom-06a

η κατοικία εξισορροπεί στρατηγικά την ανοιχτότητα και την ιδιωτικότητα

fran silvestre σπίτι sotograndeένα ανακλαστικό χαρακτηριστικό νερού ενισχύει τη θερμομόνωση και βελτιώνει την ενεργειακή απόδοση

fran-silvestre-arquitectos-house-sotogrande-spain-designboom-08a

Ο σχεδιασμός δίνει προτεραιότητα στη βιωσιμότητα και στις ελάχιστες περιβαλλοντικές επιπτώσεις για τη σύγχρονη ζωή

 
 
 
 
 
 
 
 
 
 
 
 

πληροφορίες έργου:

όνομα:  Σπίτι στο Σοτογκράντε

αρχιτέκτονας:  Fran Silvestre Arquitectos  |  @fransilvestrearquitectos

τοποθεσία:  Σοτογκράντε, Ανδαλουσία, Ισπανία

έκταση:  802 τετραγωνικά μέτρα

ολοκλήρωση:  2024

βίντεο:  © Jesús Orrico

φωτογραφία:  © Fernando Guerra | @fernandogguerra

Πολυμέσα

Προσθήκη σχολίου

Βεβαιωθείτε ότι εισάγετε τις (*) απαιτούμενες πληροφορίες, όπου ενδείκνυται. Ο κώδικας HTML δεν επιτρέπεται.